Proxima Reality, s.r.o. nabízí řadový dům v historické zástavbě jen pár kroků od centra Kaplice.
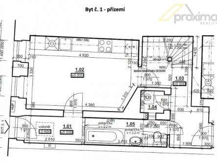
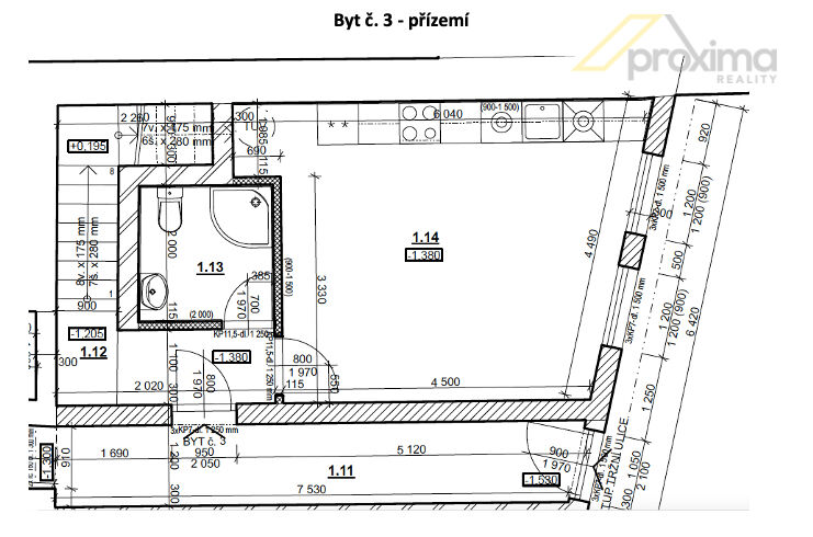
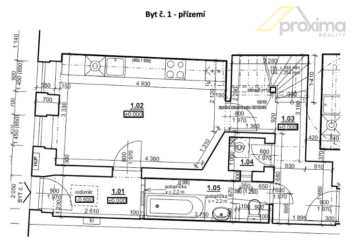
Jedná se o objekt s částečným podkrovím ze smíšeného kamenného a cihelného zdiva. Byla započata rekonstrukce dle platného stavebního povolení pro vznik tří samostatných jednotek: 1× byt 3+1, 2× byt 3+kk. Byt z ulice Dlouhá je ve fázi hrubé stavby.
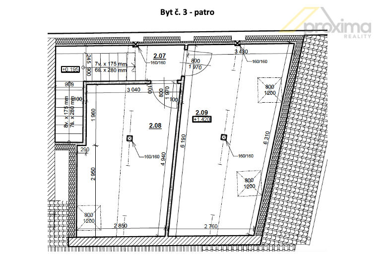
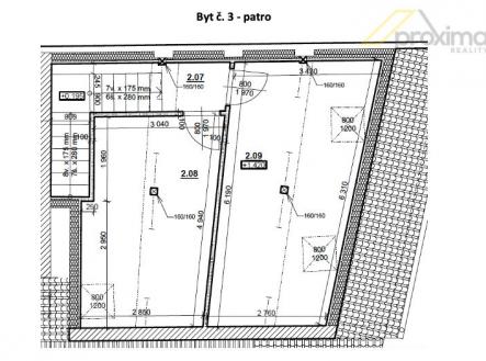
Byt v patře je nově vyzděný, jedná se o hrubou stavbu. Ve stodole je možné parkovat nebo využít jako skladovací prostor či dílnu. Přístup a příjezd je zajištěn z veřejných komunikací. Napojení objektu na inženýrské sítě je řešeno na městské a veřejné sítě (elektřina, plyn, voda, kanalizace).
Nemovitost má skvělou polohu v historickém centru Kaplice – veškerá občanská vybavenost doslova za rohem. Je zde možnost dokončit rekonstrukci podle vlastních představ.
- Poloha objektu:řadový
- Druh objektu:smíšená
- Stav objektu:před rekonstrukcí
- Počet podlaží v objektu:2
- Typ domu:přízemní
- Zastavěná plocha:225 m2
- Užitná plocha:200 m2
- Plocha parcely:225 m2
- Umístění objektu:centrum obce
- Elektřina:Elektro - 230 V
- Voda:Vodovod
- Plyn:Plynovod
- Odpad:Kanalizace
- Energetická náročnost budovy:G - Mimořádně nehospodárná
- Energetický ukazatel
podle vyhlášky:č. 264/2020 Sb.
